Smart imobiliare vinde casa situata intr-un cartier nou din Sura Mica.
Casa dispune de un teren de 480mp, din care 400 liberi. Suprafafa utila este de 120mp dispusi pe 2 niveluri, parter si etaj.
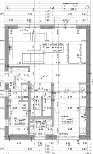
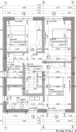
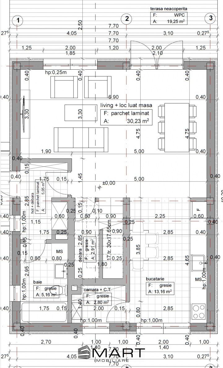
Parterul este compus din hol la intrare, living spatios cu iesire pe terasa exterioara, bucatarie ce poate fi inchisa, camara, spatiu depozitare sub scari si baie. La etaj dispune de hol, baie si 3 dormitoare, din care unul cu baie proprie.
Predarea se face in vara anului 2026, la stadiul de ALB la interior si cheie exterior si conectata la toate utilitatiile cu centrala proprie cu incalzire in pardoseala.
Pentru detalii suplimentare, precizati ca ati vazut anuntul cu ID: P17809

ID: P17809 Sura Mica, Central
3
240.000€
Casa individuala 120mp teren 480mp Sura Mica
Camere
4
Suprafata utila
120 mp
Bai
3
Front stradal
16 m
An constructie
2026
Caracteristici
- ID:P17809
- Nr. camere:4
- Nr. dormitoare:3
- S. utila:120.00 mp
- S. terase:20.00 mp
- S. construita:80.00 mp
- S. teren:480.00 mp
- Nr. bucatarii:1
- Nr. bai:3
- Nr. parcari:2
- Front stradal:16.00 m
- Nr. fronturi:1
- An constructie:2026
- Structura rezistenta:Caramida
- Regim inaltime:P+1
Descriere
Specificatii
Curent
Apa
Canalizare
Gaz
Centrala proprie
Incalzire pardoseala
Localizare
Esti interesat de aceasta proprietate ?
Proprietati similare